Appui

Triple Sports Hall
International competition, 4th prize

Bellinzona, Switzerland
2025

Tenet with:
P•A•N (Davide Macchi + Filippo Cattapan)

Consultants:
Borlini & Zanini SA (Structural engineering)
Evolve SA (MEP /Cost estimates)
Acustica Studio (acoustics)

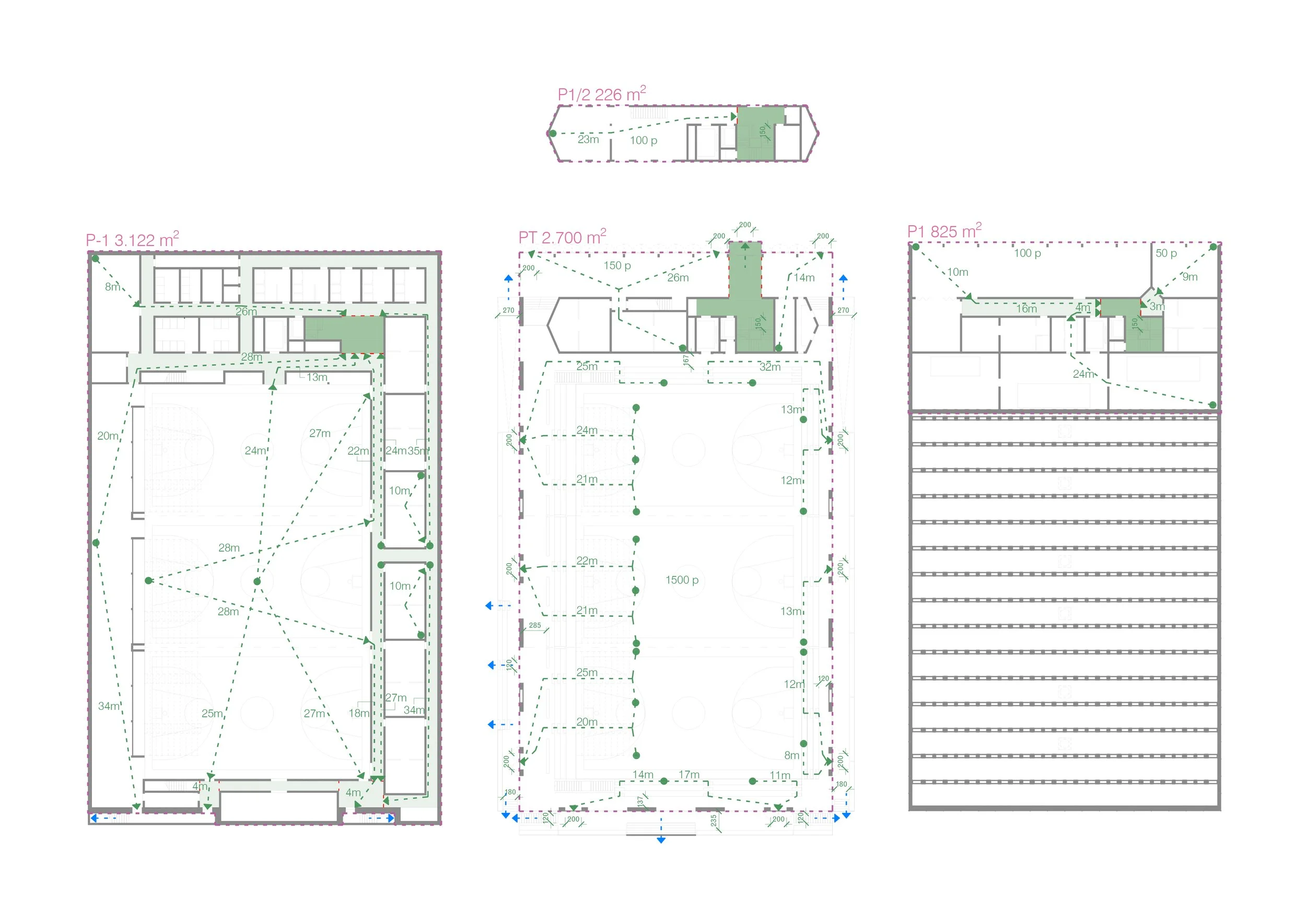
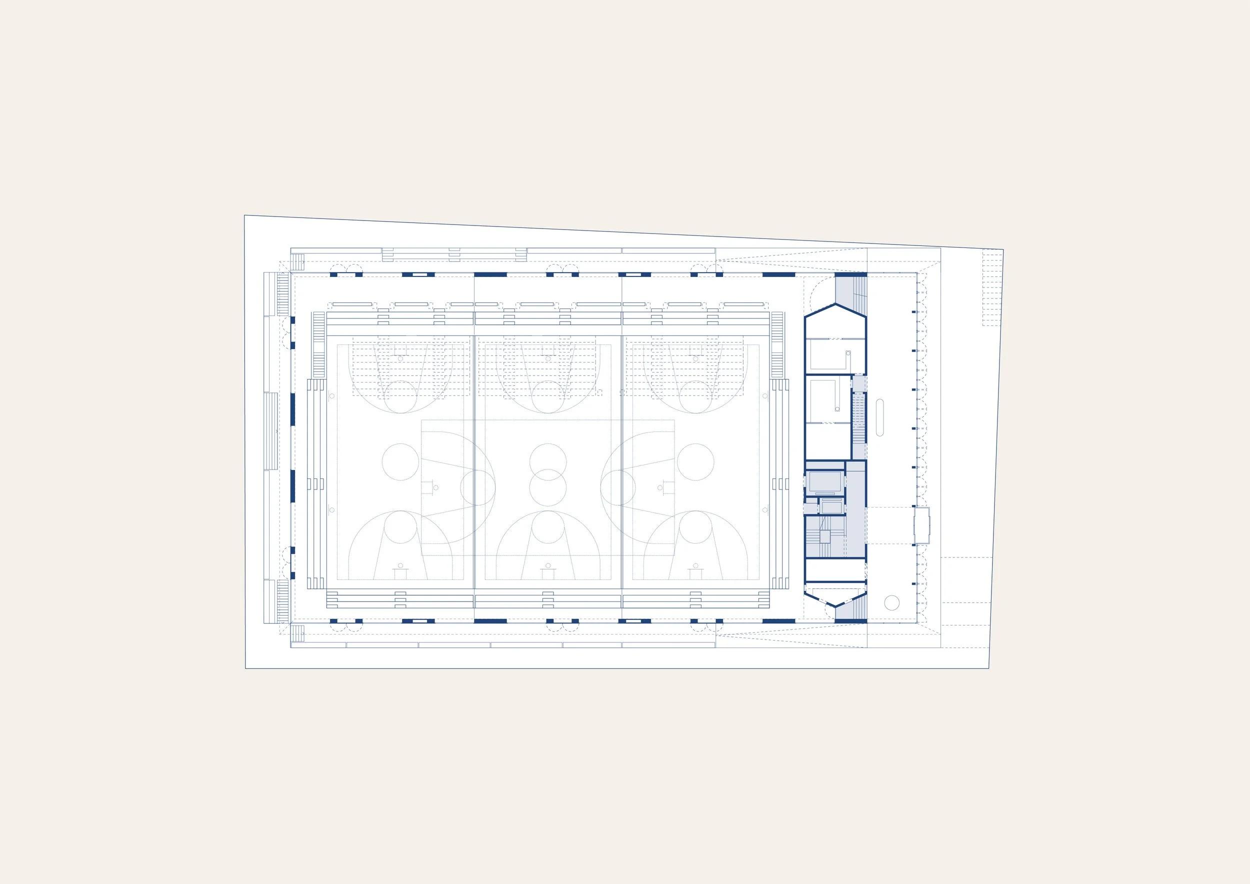
The new Triple Sports Hall redefines the Torretta district as an urban hinge between school, park, and city. Conceived as a compact and archetypal volume, the building is structured around three elements — a concrete podium, a wooden prism, and a suspended roof truss — whose interplay generates the main voids of the project: the foyer, the bleachers, and the triple-height gym hall.

Set slightly below ground level, the courts are framed by a continuous ring of circulation that ensures accessibility and visual connection to the park. This intermediate podium acts both as a threshold between public space and sports infrastructure and as an outdoor terrace that expands the hall during events.

The building’s envelope combines efficiency and expressiveness: the lower façade alternates glass and anodised recycled aluminium panels, while the upper register becomes a luminous frieze with LED inserts, transforming the elevation into an interactive landmark that communicates events and animates the public space.

Inside, functional clarity meets flexibility — fixed and retractable bleachers, modular partitions, and visual continuity between levels allow the spaces to adapt to multiple configurations. Built mainly in timber and powered by geothermal and district heating systems, the project meets Minergie-P standards through passive strategies, a green roof, and photovoltaic panels.

An architecture both civic and precise, the Bellinzona Sports Hall translates structural logic into a public gesture — robust, inclusive, and deeply rooted in its landscape.